发布时间:2019-04-12 15:27:41 点击:2023
导语:在装饰与布置中最大限度的体现空间与家具的整体协调。今天小编带领大家一起欣赏一套出自苏州装修公司红蚂蚁装饰的现代风格实景案例,喜欢大家喜欢。
现代风格即现代主义风格,现代主义也称功能主义,顾名思义,重视功能和空间组织,注重发挥结构构成本身的形式美,造型简洁,反对多余装饰,尊重材料的特性。现代风格的居室,无论房间大小,一定要显得宽敞。不需要繁琐的装潢和过多家具,在装饰与布置中最大限度的体现空间与家具的整体协调。今天小编带领大家一起欣赏一套出自苏州装修公司红蚂蚁装饰的现代风格实景案例,喜欢大家喜欢。
项目信息
设计丨范方艾
地址丨狮山原著
机构丨红蚂蚁装饰
面积丨170㎡
户型丨4室2厅3卫
风格丨现代
造价丨60万
施工周期丨4-6个月
业主需求丨时尚简洁,大方,储物多
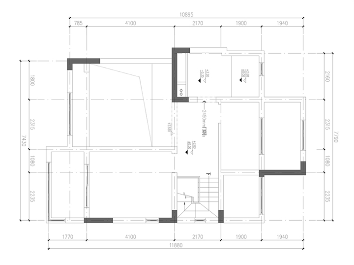
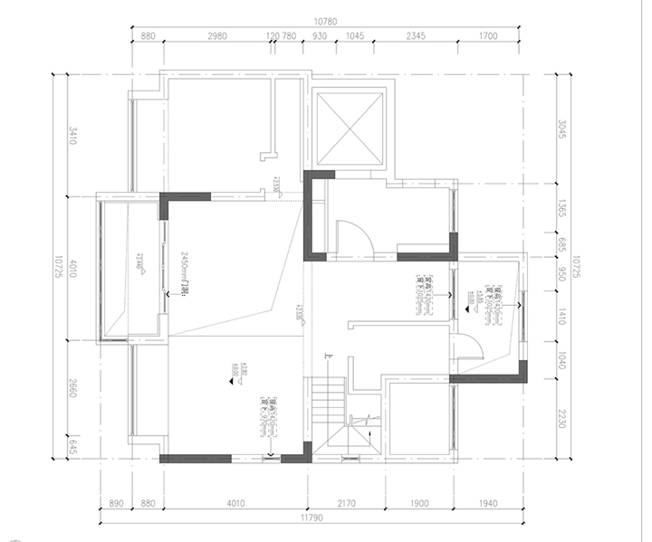
原始结构图
本案即为经典的现代风格实例,整个硬装装修时间为4个月,软装全部搭配好用了近6个月左右的时间,业主对最终呈现出来的效果非常满意。
本案借用大理石的整洁与天然的纹理特征,将其大量运用于装饰上,电视背景墙是与业主一起精心挑选的鱼肚白大理石,楼梯则运用了爵士白云朵拉灰大理石拼色,使整体感觉显得简洁大气。
考虑到楼梯比较窄,所以楼梯的扶手只用了一面的玻璃扶手,另一边用了玻璃隔断的设计,开阔了空间也起到了很好的点缀作用。
整体生活功能区在家具的选择上也遵循着简约现代的风格特色,皮质的沙发非常有质感,大理石台面的餐桌和茶几,也让整个空间又上升了一个档次。
餐厅的实木护墙板背景嵌上金属线条,与电视背景墙相呼应。黑灰色系的餐边柜和餐桌椅与客厅沙发茶几呼应的同时,将简洁的风格特色展现的淋漓尽致。
厨房在满足日常功能需求的同时,增设了吧台,为平日的简餐、品茗提供了一个富有情调的角落。黑色金属推拉移门配上墨色玻璃,让整体色调统一的同时,尽显浓浓的品质格调。
书房的着重点在软装的搭配上,遵循整体居室黑灰的色调,书架及桌椅的搭配上也将这份简约延续,大理石台面的书桌成为整个空间的一个增色亮点。
干湿功能区通过玻璃移门很好的进行阻隔,宽大的浴缸与淋浴区放在一起,节省空间的同时功能齐全,带烘干功能的毛巾架及智能马桶预留插座等功能性配件也一应俱全。
卧室的整体色调偏暗,但不沉闷,床头的软包背景墙将冰冷的墙面覆盖,给人一种温暖的感觉,拉上窗帘在此美美睡上一觉,妙哉!
有人会说现代风格太简单了,放点家具就好了。其实不然,少即是多的设计理念是很多设计师推崇的,而“少”的运用却是极难的。
从整体色调的把控,到整体家具软饰的搭配上,都需要精心的构思。和谐是永恒的主题,温馨是最终的目的。大家觉得这套实景案例怎么样?是不是很优秀?您要是还在纠结怎么选择苏州装修公司的话,可以抽时间来红蚂蚁装饰门店来了解咨询,我们20年专注高品质家装,您一定会有不小的收获哟!
请认真填写您的正确信息
2025-11-17 15:39:00
当您买新房装修的时候,需要购买各种各样的家具,而当您购买家具的时候,您就要考虑房子装修家具如何搭配,装修选家具应该注意些什么,下面小编就带您来了解房子装修家具的搭配以及选购注意事项。
2025-11-16 14:03:00
风水是中国传统的文化之一,很多人在装修或者设计家居时都会考虑风水问题。下面小编将为你介绍的是家中楼梯风水的五大禁忌,家里楼梯朝向风水讲究,不过,需要提醒的是,风水是一种文化传统,其效果可能因人而异,且并非所有人都认同。
2025-11-13 15:03:00
很多人在装修的时候都会为孩子考虑,有小孩的家庭怎么装修, 相信很多业主都对这个问题很感兴趣。今天就带大家来了解有小孩的家庭怎么装修,家里有小孩适合装修什么风格,家中有小孩,并且打算装修的业主可以来看看。
2025-11-11 13:56:00
今天将为大家带来的是木地板颜色选择六大原则,木地板颜色怎么搭配,希望可以对大家装修新家时候有所帮助,如果您还在为地板颜色选择而烦恼,这篇文章也能很好的帮助到您,一起来看看吧。
2025-11-10 14:10:00
随着大家越来越追求环保的装修材料,原木风的装修越来越受大家的喜欢,原木风装修有非常多的优点,当然我们在选择这种装修风格的时候,需要了解清楚原木风装修的一些优缺点,还有原木风装修需要注意的事项,今天就让小编和大家好好聊一下关于原木风装修的相关知识。
2025-11-06 11:22:00
日式风格以其自然、简约和禅意的特点,近年来在全球家居设计中广受欢迎。这种风格强调"少即是多"的理念,通过精心选择的材质和色彩搭配,营造出宁静、舒适的生活空间。本文将详细介绍日式风格墙面的设计特点、颜色搭配方案以及专业设计建议,帮助您打造理想的日式家居环境。