发布时间:2019-05-23 17:13:26 点击:1266
导语:当置身在轻奢优雅的家中,暮然回首,处处是景,这就是梦中的华尔兹所要传达的浪漫与唯美。本案摒弃了初稿的新奇与浮华,着重强调简洁与优雅,明晰的线条与有得体有度的装饰使整个居室更加光彩动人。无论在材质选择,还是色彩的刻画上,家具以及配饰都以其优雅唯美的姿态,展现鲜明的时代气息。下面请跟随摄影师的脚步,一起欣赏红蚂蚁装饰这套艳惊四座的实景作品。
设计丨杨藩红
地址丨华润·城立方
机构丨红蚂蚁装饰
面积丨140平米
房型丨复式
风格丨美式轻奢
当置身在轻奢优雅的家中,暮然回首,处处是景,这就是梦中的华尔兹所要传达的浪漫与唯美。本案摒弃了初稿的新奇与浮华,着重强调简洁与优雅,明晰的线条与有得体有度的装饰使整个居室更加光彩动人。无论在材质选择,还是色彩的刻画上,家具以及配饰都以其优雅唯美的姿态,展现鲜明的时代气息。下面请跟随摄影师的脚步,一起欣赏红蚂蚁装饰这套艳惊四座的实景作品。
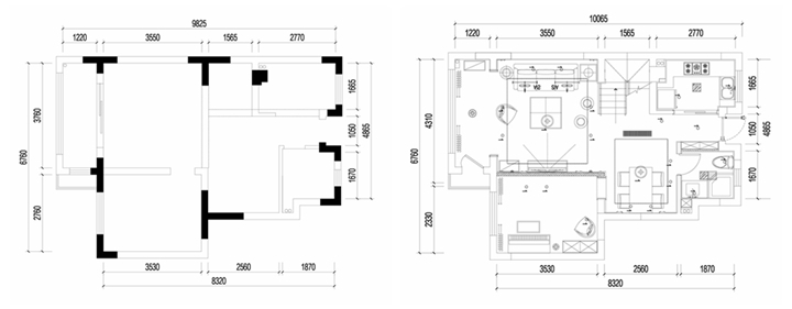
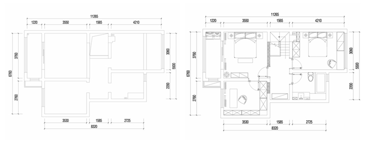
(一层)
(二层)
客厅·色彩点缀
客厅以经典的白色系为主背景色,配上深褐色的沙发和茶几,并在细节处运用金属元素与电视背景的浅褐色相呼应,将美式轻奢的韵味巧妙的融入其中。
整体空间色彩追求的是和谐一致,软装色彩与环境背景色形成协调对比的同时,不忘表达出空间轻奢的主题,而轻奢又能跳出背景,成为“主角”。
餐厅·光色合一
餐厅的空间在与客厅衔接的时候注重整体性的打造,墙纸、墙体造型以及地砖勾线在色彩与形状上都做到了相互辉映。
同样搭配深色的餐桌和白色餐椅,点缀在白色空间里形成对比与互补,增强聚合力,营造用餐的祥和氛围。
卧室·成套的享受
在与刘女士沟通的时候,她就表达了对套房的强烈喜爱,所以在空间规划上,为了做到尽可能的开放,将原来的四房改成三房,这样就可以满足客户所求,打造一个卧室+书房的舒适实用的套房格局。
卧室整体以白、金为主色调,整面的衣柜完全满足了日常的收纳需求,同时飘窗的设计更是让刘女士更多了一个随处阅读的场所。
书房相较于其他空间在颜色的运用上则更加沉稳,给人一种文化经久积淀的感觉,金属桌角的选择以及流苏形吊灯的搭配则给整体空间带来了更多活泼感。
休闲室·色彩堆砌的闲适
对高品质生活有一定追求的刘女士,学习钢琴多年,新家的装修自然要为这个好伙伴找一处地方安放,同时在这个独立的房间内,找一处靠窗的角落,用沉稳的暗红搭建出静谧的一隅,闲暇之余在这里听听音乐、看看书,不失为繁忙工作之后的一种放松与享受。
厨房
卫生间
本案在结构上最大限度的做到动线合理,空间上也尽可能的通透宽敞,在满足日常功能需求的同时,寄予户主精神愉悦放松的空间。在古典美学规范下,采用现代先进的工艺技术和新材质,搭配应景色彩重新诠释美式轻奢的精神内涵,具有端庄,雅致,明显的时代特征。更多红蚂蚁装饰案例进入官网经典案例页面,多种风格案例供您参考。
上一篇: 苏州装修公司红蚂蚁装饰实力诠释现代轻奢风
请认真填写您的正确信息
2025-11-17 15:39:00
当您买新房装修的时候,需要购买各种各样的家具,而当您购买家具的时候,您就要考虑房子装修家具如何搭配,装修选家具应该注意些什么,下面小编就带您来了解房子装修家具的搭配以及选购注意事项。
2025-11-16 14:03:00
风水是中国传统的文化之一,很多人在装修或者设计家居时都会考虑风水问题。下面小编将为你介绍的是家中楼梯风水的五大禁忌,家里楼梯朝向风水讲究,不过,需要提醒的是,风水是一种文化传统,其效果可能因人而异,且并非所有人都认同。
2025-11-13 15:03:00
很多人在装修的时候都会为孩子考虑,有小孩的家庭怎么装修, 相信很多业主都对这个问题很感兴趣。今天就带大家来了解有小孩的家庭怎么装修,家里有小孩适合装修什么风格,家中有小孩,并且打算装修的业主可以来看看。
2025-11-11 13:56:00
今天将为大家带来的是木地板颜色选择六大原则,木地板颜色怎么搭配,希望可以对大家装修新家时候有所帮助,如果您还在为地板颜色选择而烦恼,这篇文章也能很好的帮助到您,一起来看看吧。
2025-11-10 14:10:00
随着大家越来越追求环保的装修材料,原木风的装修越来越受大家的喜欢,原木风装修有非常多的优点,当然我们在选择这种装修风格的时候,需要了解清楚原木风装修的一些优缺点,还有原木风装修需要注意的事项,今天就让小编和大家好好聊一下关于原木风装修的相关知识。
2025-11-06 11:22:00
日式风格以其自然、简约和禅意的特点,近年来在全球家居设计中广受欢迎。这种风格强调"少即是多"的理念,通过精心选择的材质和色彩搭配,营造出宁静、舒适的生活空间。本文将详细介绍日式风格墙面的设计特点、颜色搭配方案以及专业设计建议,帮助您打造理想的日式家居环境。